Обяви 0 За нас Контакти
Продава 4-СТАЕН
град Търговище, Запад 2
Бул. 3-ти март 54
96 000 €
187 759.68 лв.

(906 €, 1 771.98 лв./m2)
Цената е с включено ДДС
Коригирана в 13:52 на 1 януари, 2026 год.
Обявата е посетена 4089 пъти.
Площ:
106 m2
Етаж:
5-ти от 5
Строителство:
Тухла, Ще бъде въведен в експлоатация 2027 г.

Описание на имота:


Четиристаен апартамент! Апартаменти за инвестиция! Бул. 3-ти март 54, кв. Запад 2! ОТ СТРОИТЕЛЯ!

ДИРЕКТНО ОТ СТРОИТЕЛЯ!
БЕЗ КОМИСИОНА ОТ КУПУВАЧА!
ПЛАЩАНЕ НА ВНОСКИ!

АКТИВ ИМОТИ представя:
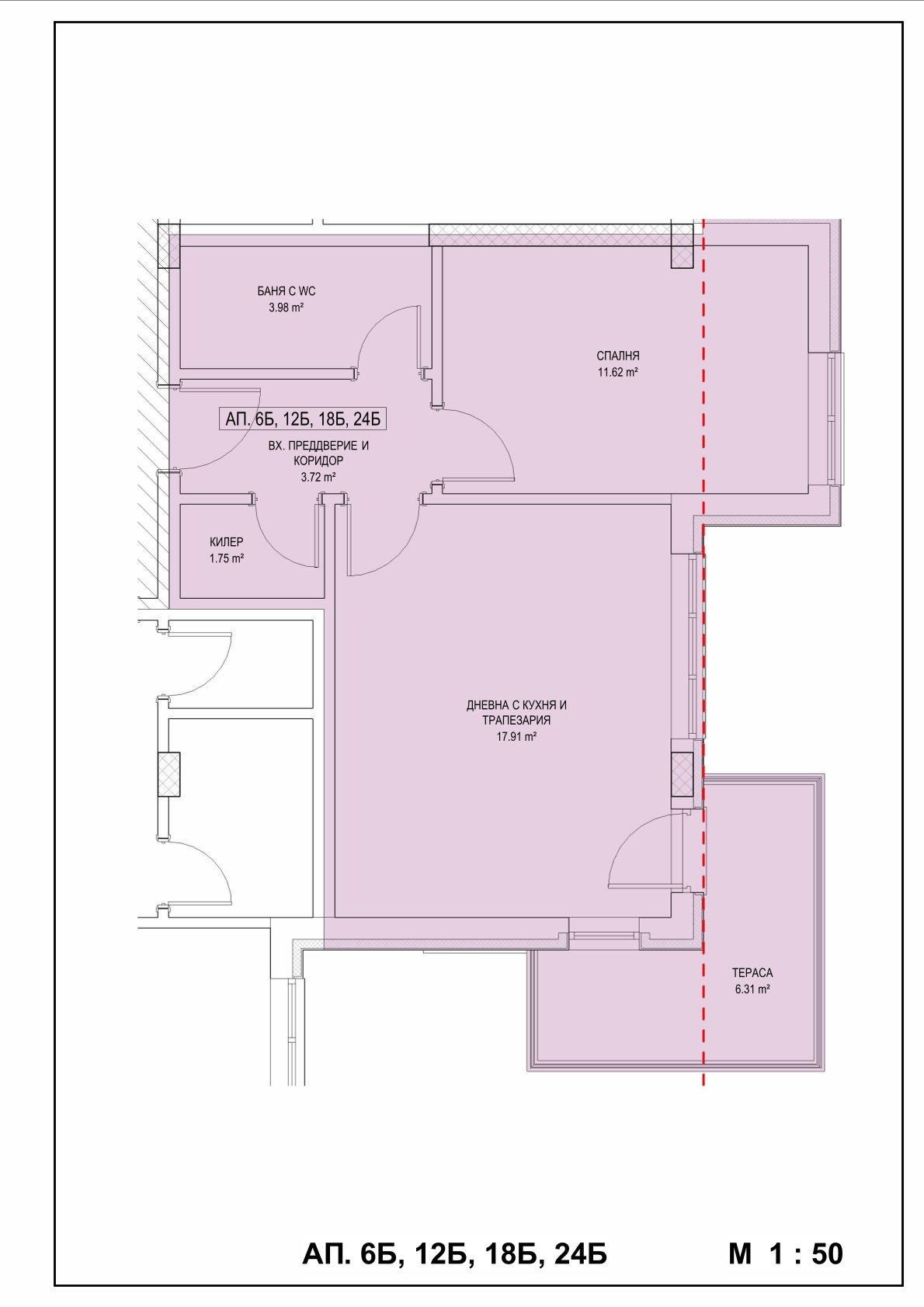
Четиристаен апартамент
Местонахождение: бул. 3-ти март 54, кв. Запад 2
Разположен на пети жилищен етаж с асансьор
Площ: 105,81 кв. м.
Разпределение:
Входно преддверие с коридор, дневена-хол с тераса, самостоятелна кухня,
родителска спалня с тераса, детска стая,
баня и тоалетна, килер, втори санитарен възел.
Изложение: Запад/Север

Съдействаме за получаване на ипотечен кредит

Реф. 4264 (19А)

Жилищен комплекс АЛГАРА - перлата в кв. Запад 2, гр. Търговище, бул. 3-ти март 54.
Проект на Актив!

Зеленина, свежест и класа-това събира в себе си Комплекс АЛГАРА, даващ усещане за спокойствие и хармония.
С изчистена и стилна визия, Комплекс АЛГАРА е изграден от две самостоятелни жилищни сгради на 5 етажа,
предлагащи висок комфорт на обитаване, спокойствие и уединение.
Типовете апартаменти са с една, две и три спални, както и градински апартаменти със собствен двор.
Осигурено е подземно и надземно паркиране, с гаражи и паркоместа към всяко жилище.
За децата е предвидена детска площадка.
Осигурена е достъпна среда.

Технически характеристики:
Конструкция монолитна стоманобетонна безгредова
Тухли: 25 см
Вътрешни стени и тавани: машинно гипсова мазилка
Подове: изравнителна замазка
Цялостна система за топлоизолация 10 см
Силикатна мазилка
Висококачествена PVC дограма
Луксозни общи части
Асансьор
Домофонна система
Електроинсталация с ключове и контакти
Изградена ВиК инсталация до тапа, монтирани водомери с
дистанционно отчитане
Направено окабеляване за интернет, телевизия, телефон
Входни блиндирани врати

-----------------------------------------------------------------------------------------
РАЗЧИТАЙТЕ НА НАС ПРИ ИЗБОРА НА ВАШИЯ ИМОТ!
АКТИВ ИМОТИ - ТРАДИЦИЯ, КАЧЕСТВО, ДОВЕРИЕ, СИГУРНОСТ!
-----------------------------------------------------------------------------------------
Особености
Тухла
Асансьор
С паркинг
Лизинг
Контрол на достъпа
Саниран
В затворен комплекс
За контакт:
0892 27 00 22
Агенция:
АКТИВ ИМОТИ
0892 27 00 22; 0899 905 193; 0601 62741 ;
АКТИВ ИМОТИ logo
Медал за прослужено време
В imot.bg от 2017 г.
activebg.imot.bg
Адрес:
област Търговище, гр. Търговище, ул.Г.С.Раковски 75
http://www.active-imoti.com
ИЗПРАТИ ЗАПИТВАНЕ
ИЗПРАТИ ЗАПИТВАНЕТО

Продава 4-СТАЕН
град Търговище, Запад 2
Бул. 3-ти март 54
Обява: 1d174271114680752

96 000 €
187 759.68 лв.
(906 €, 1 771.98 лв./m2)

Цената е с включено ДДС
ЗАПАЗИ ОБЯВАТА

Местоположение: град Търговище, Запад 2, Бул. 3-ти март 54

Допълнителни данни за имотите в района и сравнение с други райони

Покажи

Период

и 5 месеца

* Средните цени са определени чрез медианна стойност